Verkoop onder BTW-stelsel – 6% mogelijk!
In het groene Kruibeke, vlakbij Antwerpen, vindt u deze uitzonderlijk ruime massief houtbouwwoning met grote tuin. Een rustige, residentiële ligging gecombineerd met een vlotte bereikbaarheid richting stad.
Het gelijkvloers biedt een doordachte indeling met inkomhal, aparte bureauruimte (ideaal voor thuiswerk of zelfstandige activiteit), een praktische berging met wasvoorziening en een technische schacht die doorloopt naar de bovenliggende niveaus. De open leefruimte met voorziening voor keuken met kookeiland vormt het kloppend hart van de woning en geniet van een aangename connectie met de tuin.
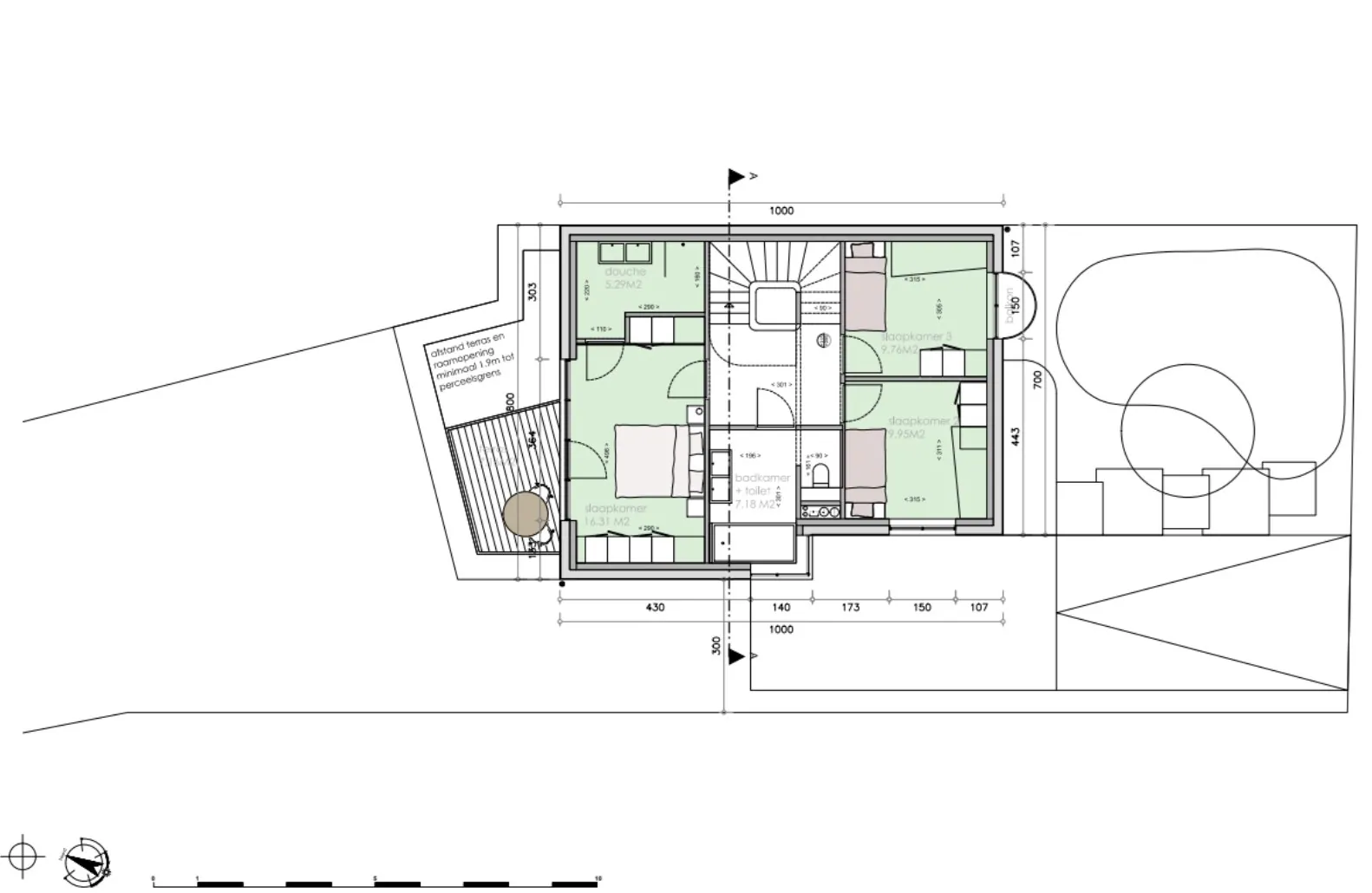
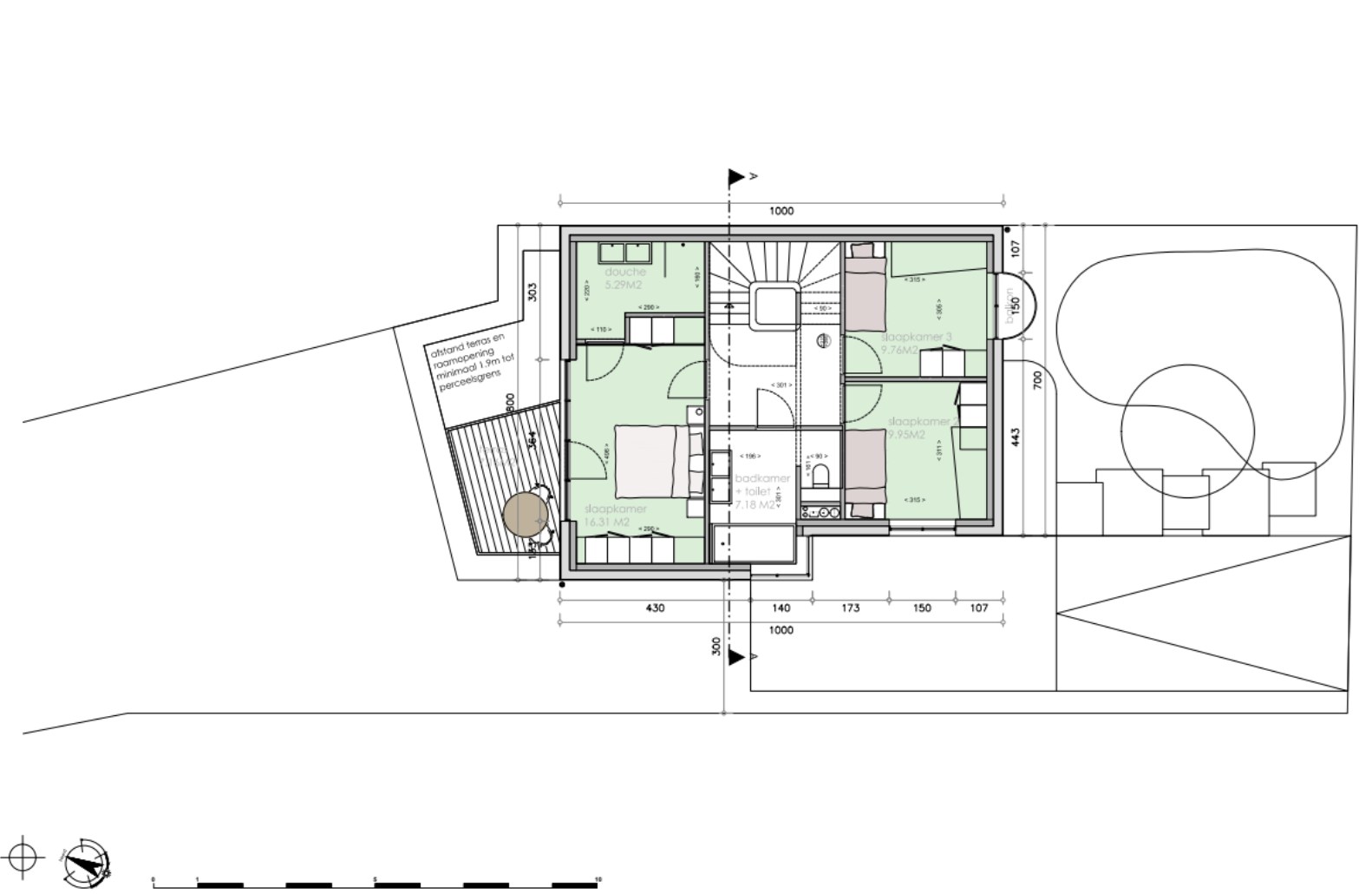
Op de eerste verdieping bevinden zich drie slaapkamers, waaronder een master bedroom met voorziening voor eigen badkamer en dressing. Daarnaast is er een extra badkamer en een apart toilet.
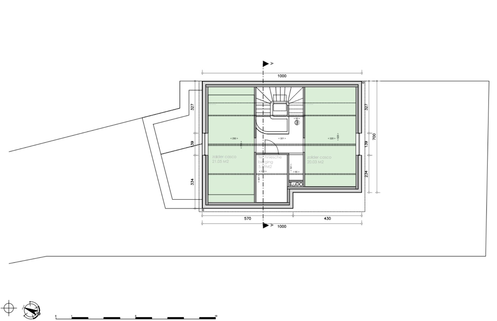
De tweede verdieping omvat twee ruime slaapkamers open tot in de nok, wat zorgt voor een indrukwekkend gevoel van licht en volume. Hier is bovendien de mogelijkheid voorzien om een bijkomende badkamer en apart toilet te installeren.
Met vijf slaapkamers, meerdere badkamers en een aparte bureauruimte biedt deze woning uitzonderlijk veel flexibiliteit.
De massieve houtstructuur staat garant voor stabiliteit, duurzaamheid, sterke energieprestaties en een gezond binnenklimaat. Bovendien wordt de woning casco aangeboden, wat u maximale vrijheid geeft in afwerking, technieken en materiaalkeuze.
Op zoek naar ruimte, karakter en afwerkingsvrijheid op een strategische locatie? Contacteer Tatjana op 0471 33 06 02 of tatjana@i-moov.be

Algemeen

Adres:Vossenstraat 38
Kruibeke
Vraagprijs:€ 465.000
Type:Woning
Beschikbaar vanaf:Bij akte
Perceeloppervlakte:350 m²
Bebouwde opp.:94 m²
Bewoonbare opp.:194 m²
Type constructie:Traditioneel

Indeling

Tuin:350 m²
Tuin oriëntatie:Noord-West

Comfort

Snelweg:Ja - op 500 m tot 1000 m
Bushalte:Ja - op 500 m tot 1000 m
Raamwerk:Aluminium
Dak:Zadeldak
Dakbedekking:Dakpannen
Gevel:Baksteen
Fundering:In volle grond
Beglazing:Dubbel, Hoogrendementsglas, Superisolerend
Elektriciteit:conform
Isolatie:Volledig geïsoleerd

Wettelijke gegevens

EPC Certificaat Nr.:46013-G-OMV_2024096781
Stedenbouwkundige vergunning:Ja
Verkavelingsvergunning van toepassing:Neen
Stedenbouwkundige bestemming:Woongebied
Overstromingsgevoelig:Geen overstromingsgevoelig gebied
Overstromingsgebied:Geen afgebakende zones
Overstromingskans perceel (P-score):A
Overstromingskans gebouw (G-score):A
Erfgoed:Geen beschermd erfgoed

Vergelijkbare panden

Kruibeke
Vossenstraat 38

€ 465 000


U moet akkoord gaan met het privacybeleid van deze website
* Verplicht in te vullen
Kruibeke
Vossenstraat 38

€ 465 000

Kruibeke
Vossenstraat 38

€ 465 000