Op de grens van Landegem en Drongen bevindt zich deze karaktervolle nieuwbouwhoeve in ruwbouwstaat, gelegen op een uitzonderlijk perceel van ca. 9.331 m², volledig omgeven door een meidoornhaag en ingebed in agrarisch gebied. Een unieke opportuniteit voor wie rust, ruimte en volledige vrijheid in afwerking weet te waarderen.

De woning werd met oog voor detail en volgens de regels van de kunst opgetrokken, waarbij gebruik werd gemaakt van recuperatiesteen en houten accenten. De dakstructuur combineert leien, dakpannen en riet, wat zorgt voor een authentieke en tijdloze uitstraling.

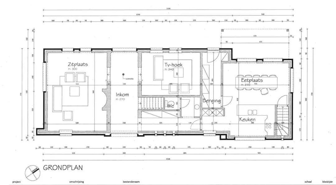
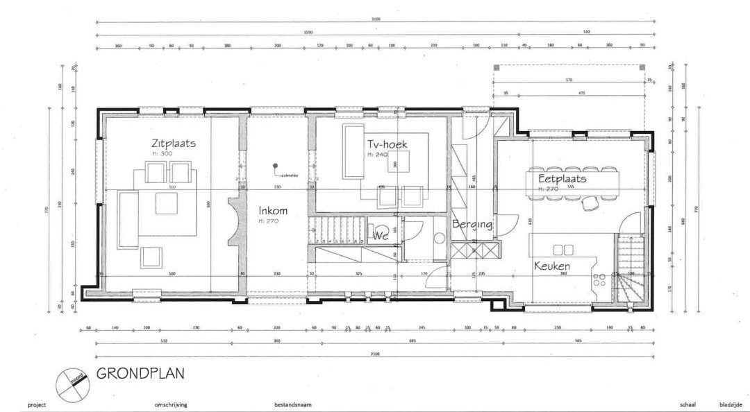
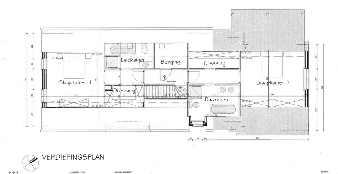
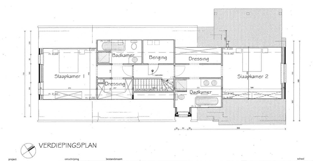
Binnenin werd een doordachte indeling voorzien met een ruime inkomhal, vestiaire en gastentoilet, een leefkeuken met aansluitend overdekt terras, bijkeuken, zithoek of bureau en een royale leefruimte met eetplaats. Op de verdieping zijn momenteel twee slaapkamers, twee dressings en twee badkamers voorzien, waarbij de indeling nog volledig aanpasbaar is naar eigen wensen.

Daarnaast beschikt het domein over twee volwaardige bijgebouwen. Het eerste biedt tal van mogelijkheden zoals kantoor, gastenverblijf of praktijkruimte, terwijl het tweede gebouw zich perfect leent voor opslag, garages of het houden van dieren, inclusief paarden.

Deze eigendom combineert een solide, kwalitatieve ruwbouw met een uitzonderlijke ligging en biedt maximale vrijheid in inrichting, materiaalkeuze en afwerking.

Een bijzonder unieke opportuniteit voor wie zijn droomwoning wil realiseren in een landelijke, doch vlot bereikbare omgeving (E40 op ca. 5 minuten).

Voor meer informatie of een bezoek, contacteer Tatjana via 0471 33 06 02 of tatjana@i-moov.be

Algemeen

Adres:Moerstraat 37
Deinze
Vraagprijs:€ 925.000
Type:Excl villa
Beschikbaar vanaf:Bij akte
Ligging:Landelijk
Perceeloppervlakte:9.331 m²
Perceelbreedte:57 m
Perceeldiepte:71 m
Bebouwde opp.:310 m²
Bewoonbare opp.:500 m²
Type constructie:Traditioneel

Indeling

Slaapkamers:3
Badkamers:2
WC:Ja
Woonkamer:Ja
Keuken:Ja
Kelder:Ja
Tuin:9.331 m²
Garage:20 plaatsen

Comfort

Snelweg:Ja - op minder dan 500 m
Dak:Zadeldak
Gevel:Baksteen
Fundering:In volle grond

Wettelijke gegevens

Kadastrale benaming:44030C0462/00C000
Kadastrale Oppervlakte:9.331 m²
Stedenbouwkundige vergunning:Ja
Verkavelingsvergunning van toepassing:Ja
Dagvaarding en herstelvordering:Geen rechterlijke herstelmaatregel of bestuurlijke maatregel opgelegd
Overstromingsgevoelig:Geen overstromingsgevoelig gebied
Overstromingsgebied:Geen afgebakende zones
Erfgoed:Niet meegedeeld

Vergelijkbare panden

Deinze
Moerstraat 37

€ 925 000


U moet akkoord gaan met het privacybeleid van deze website
* Verplicht in te vullen
Deinze
Moerstraat 37

€ 925 000

Deinze
Moerstraat 37

€ 925 000